SIGNORESSA(TV)- "RIF: AVSG1"
L'agenzia immobiliare IDHEA ha il piacere di proporvi in esclusiva questo stabile ristrutturato negli anni '80, in posizione centrale a Signoressa di Trevignano.
La sua composizione permette di ideare varie soluzioni in base all'esigenza del cliente:
- Casa-bottega: la presenza dell'appartamento residenziale al primo piano e la possibilità di sfruttare il grande magazzino al piano terra sul retro, è ideale per un lavoratore che svolge attività artiginali, come anche per un'autofficina, meccanico, ecc, il tutto con la comodità di essere sotto casa.
-Investimento: la posizione offre un potenziale di visibilità molto alto. E' ottimo anche se si vuole affittare la zona commerciale del piano terra, e il primo piano usarlo come propria abitazione, o affittarlo a sua volta.
-Casa su due piani: le scale interne che collegano il piano terra con il primo piano favoriscono lavori che portano a rendere tutto residenziale.
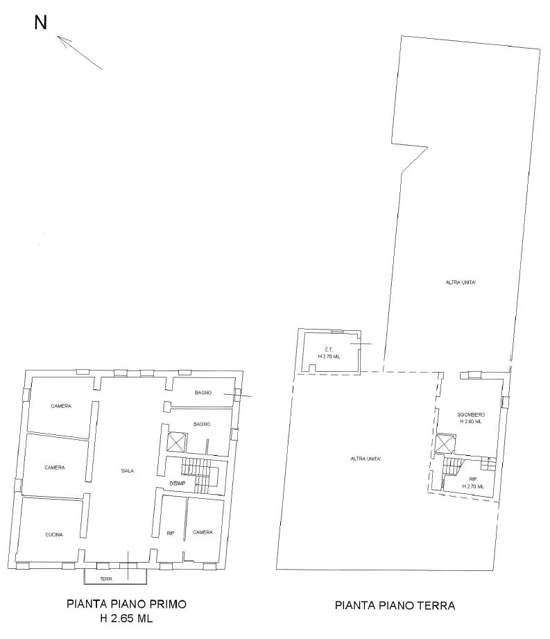
L'immobile è così composto: al piano terra troviamo un'area commerciale dove si possono ospitare fino a tre negozi indipendenti, ciascuno delle rispettive dimensioni: 20mq, 60mq e 55mq. La vetrina che affaccia sulla strada permette di dare un'ottima visibilità all'attività.
Al pian terreno, sul retro, troviamo due laboratori ad uso artiginale, per un totale di 195.8mq.
Tramite scale si accede poi al primo piano, dove si trova l'appartamento residenziale.
Disposto su un'unico piano, abbiamo: cucina arredata comprensiva di elettrodomestici, due camere matrimoniali da 18.9mq e 17.9mq, piu' una singola con studio rispettivamente da 11.5mq e 7.9mq. L'appartamento gode di due spaziosi bagni, di cui uno finestrato con vasca di 9.56mq e l'altro, sempre finestrato, da 12.5mq. Questi ambienti sono tutti collegati da uno ampio disimpegno di ben 61mq, che funge anche da salotto. Un vano scala permette di accedere alla soffita abitabile.
L'appartamento gode di uno sfogo esterno grazie a un terrazzo e a un giardino di 63mq.
Caratteristiche:
-Dotato di montacarichi
-Ristrutturato negli anni '80
-Alcuni infissi ristrutturati nel 2020
-Caldaia nuova del 2020
-Solaio e tetto rivisti nel 2024
Metratura appartamento: 139mq
Metratura totale negozi: 135mq
Metratura laboratori: 195.8mq
Metratura giardino: 63mq
L'indirizzo indicato è puramente indicativo al singolo Comune dell'annuncio trattato.
L'agenzia immobiliare IDHEA ha il piacere di proporvi in esclusiva questo stabile ristrutturato negli anni '80, in posizione centrale a Signoressa di Trevignano.
La sua composizione permette di ideare varie soluzioni in base all'esigenza del cliente:
- Casa-bottega: la presenza dell'appartamento residenziale al primo piano e la possibilità di sfruttare il grande magazzino al piano terra sul retro, è ideale per un lavoratore che svolge attività artiginali, come anche per un'autofficina, meccanico, ecc, il tutto con la comodità di essere sotto casa.
-Investimento: la posizione offre un potenziale di visibilità molto alto. E' ottimo anche se si vuole affittare la zona commerciale del piano terra, e il primo piano usarlo come propria abitazione, o affittarlo a sua volta.
-Casa su due piani: le scale interne che collegano il piano terra con il primo piano favoriscono lavori che portano a rendere tutto residenziale.
L'immobile è così composto: al piano terra troviamo un'area commerciale dove si possono ospitare fino a tre negozi indipendenti, ciascuno delle rispettive dimensioni: 20mq, 60mq e 55mq. La vetrina che affaccia sulla strada permette di dare un'ottima visibilità all'attività.
Al pian terreno, sul retro, troviamo due laboratori ad uso artiginale, per un totale di 195.8mq.
Tramite scale si accede poi al primo piano, dove si trova l'appartamento residenziale.
Disposto su un'unico piano, abbiamo: cucina arredata comprensiva di elettrodomestici, due camere matrimoniali da 18.9mq e 17.9mq, piu' una singola con studio rispettivamente da 11.5mq e 7.9mq. L'appartamento gode di due spaziosi bagni, di cui uno finestrato con vasca di 9.56mq e l'altro, sempre finestrato, da 12.5mq. Questi ambienti sono tutti collegati da uno ampio disimpegno di ben 61mq, che funge anche da salotto. Un vano scala permette di accedere alla soffita abitabile.
L'appartamento gode di uno sfogo esterno grazie a un terrazzo e a un giardino di 63mq.
Caratteristiche:
-Dotato di montacarichi
-Ristrutturato negli anni '80
-Alcuni infissi ristrutturati nel 2020
-Caldaia nuova del 2020
-Solaio e tetto rivisti nel 2024
Metratura appartamento: 139mq
Metratura totale negozi: 135mq
Metratura laboratori: 195.8mq
Metratura giardino: 63mq
L'indirizzo indicato è puramente indicativo al singolo Comune dell'annuncio trattato.
Mappa
Contattaci
INFORMAZIONI EXTRA
AMBIENTI
| Soggiorno | |
| Cucina | |
| Soffitta | |
| Terrazzi | 1 |
| Poggioli/balconi | 2 |
| Giardino | |
| Posto auto | 1 |
LIVELLI & COMFORT
| Livelli | Piano terra , Primo piano |
| Aria condizionata | |
| Riscaldamento autonomo | |
| Accesso disabili | |
| Ascensore | |
| Numero accessi carrai | 1 |
| Tende da sole | |
| Vasca |


