VILLORBA - LANCENIGO
""" RIFERIMENTO UV8 """
Visita il nostro sito https://idhea.it/ per ulteriori proposte ed altri servizi come la VALUTAZIONE GRATUITA DEL TUO IMMOBILE.
L'Agenzia immobiliare Idhea ha il piacere di proporvi in esclusiva questa splendida quadrifamiliare che andrà ad edificarsi nella zona di Villorba, più precisamente a Lancenigo in una zona ricca di verde e privacy, l'ideale per tutte le famiglie o coppie che cerchino la massima tranquillità unita alla bellezza del verde circostante ed alla vicinanza dei servizi che offre il quartiere, raggiungibili a piedi, che spaziano dalle scuole, ai mezzi pubblici di linea per Treviso, ai negozi di vario genere ed ai supermercati. Le porzioni infatti, pur in zona centrale, sorgeranno all'interno del Parco delle Fontane Bianche, arricchito dalla presenza del fiume Melma.
La costruzione sarà coerente al contesto nel quale andrà ad inserirsi, ed avrà un'architettura in stile tradizionale con tetto a due falde e scuri esterni. Internamente le unità avranno un impronta moderna con finiture "minimal" di "design".
Le unità usciranno in Classe A4 con ben 6 kw di impanto fotovoltaico ciascuna, con impianto di riscaldamento a pavimento, doppio cappotto interno ed esterno ed impianto di climatizzazione installato.
La costruzione prevede giardini di pertinenza per tutte le unità, uno dei quali lambito dal fiume Melma, garage singolo fuori terra e posto auto scoperto di proprietà. Sarà possibile, per chi volesse, ricavare ulteriori due posti auto coperti all'interno del giardino di proprietà.
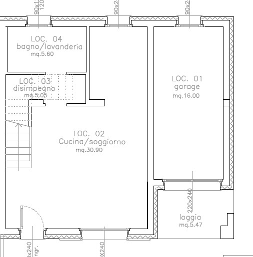
Calandoci nello specifico dell'unità immobiliare, porzione di testa, questa si presenta al piano terra con una zona giorno open-space di circa 31 mq., con ampie vetrate di affaccio sul giardino, un bagno/lavanderia e un garage.
Al piano primo tre camere da letto, una matrimoniale di ben 21,30 mq con bagno esclusivo e loggia privata, due camere singole entrambe con uscita sul terrazzo di 7,85 mq. ed il bagno zona notte.
Completa la proprietà il giardino di pertinenza su due lati.
LA PORZIONE E' IDENTIFICATA CON LETTERA "C1" IN PLANIMETRIE ESTERNI ALLEGATA.
L'indirizzo indicato è puramente indicativo al singolo Comune dell'annuncio trattato.
La nostra agenzia offre un servizio gratuito di consulenza per mutui fino al 100%
Ti serve un mutuo? Chiedi una consulenza gratuita ai nostri specialisti del credito
""" RIFERIMENTO UV8 """
Visita il nostro sito https://idhea.it/ per ulteriori proposte ed altri servizi come la VALUTAZIONE GRATUITA DEL TUO IMMOBILE.
L'Agenzia immobiliare Idhea ha il piacere di proporvi in esclusiva questa splendida quadrifamiliare che andrà ad edificarsi nella zona di Villorba, più precisamente a Lancenigo in una zona ricca di verde e privacy, l'ideale per tutte le famiglie o coppie che cerchino la massima tranquillità unita alla bellezza del verde circostante ed alla vicinanza dei servizi che offre il quartiere, raggiungibili a piedi, che spaziano dalle scuole, ai mezzi pubblici di linea per Treviso, ai negozi di vario genere ed ai supermercati. Le porzioni infatti, pur in zona centrale, sorgeranno all'interno del Parco delle Fontane Bianche, arricchito dalla presenza del fiume Melma.
La costruzione sarà coerente al contesto nel quale andrà ad inserirsi, ed avrà un'architettura in stile tradizionale con tetto a due falde e scuri esterni. Internamente le unità avranno un impronta moderna con finiture "minimal" di "design".
Le unità usciranno in Classe A4 con ben 6 kw di impanto fotovoltaico ciascuna, con impianto di riscaldamento a pavimento, doppio cappotto interno ed esterno ed impianto di climatizzazione installato.
La costruzione prevede giardini di pertinenza per tutte le unità, uno dei quali lambito dal fiume Melma, garage singolo fuori terra e posto auto scoperto di proprietà. Sarà possibile, per chi volesse, ricavare ulteriori due posti auto coperti all'interno del giardino di proprietà.
Calandoci nello specifico dell'unità immobiliare, porzione di testa, questa si presenta al piano terra con una zona giorno open-space di circa 31 mq., con ampie vetrate di affaccio sul giardino, un bagno/lavanderia e un garage.
Al piano primo tre camere da letto, una matrimoniale di ben 21,30 mq con bagno esclusivo e loggia privata, due camere singole entrambe con uscita sul terrazzo di 7,85 mq. ed il bagno zona notte.
Completa la proprietà il giardino di pertinenza su due lati.
LA PORZIONE E' IDENTIFICATA CON LETTERA "C1" IN PLANIMETRIE ESTERNI ALLEGATA.
L'indirizzo indicato è puramente indicativo al singolo Comune dell'annuncio trattato.
La nostra agenzia offre un servizio gratuito di consulenza per mutui fino al 100%
Ti serve un mutuo? Chiedi una consulenza gratuita ai nostri specialisti del credito
Mappa
Contattaci
INFORMAZIONI EXTRA
AMBIENTI
| Soggiorno angolo cottura | |
| Terrazzi | 1 |
| Poggioli/balconi | 1 |
| Giardino | |
| Posto auto | 1 |
| Garage | 1 |
| Lavanderia |
LIVELLI & COMFORT
| Livelli | Piano terra , Primo piano |
| Aria condizionata | |
| Pannelli fotovoltaici | |
| Raffreddamento a pavimento | |
| Riscaldamento autonomo | |
| Riscaldamento a pavimento | |
| Animali ammessi | |
| Ingresso indipendente | |
| Numero accessi carrai | 1 |
| Numero portoni | 1 |
| Porta blindata | |
| Predisposizione allarme | |
| Zanzariere |


