SPRESIANO - VISNADELLO
""" RIFERIMENTO FGS11 """
Visita il nostro sito https://idhea.it/ per ulteriori proposte ed altri servizi come la VALUTAZIONE GRATUITA DEL TUO IMMOBILE.
L'agenzia Idhea di Villorba propone per i suoi clienti splendida porzione di bifamiliare in vendita a Visnadello, sita in un quartiere residenziale edificato quasi esclusivamente di villette e porzioni a bassa densità abitativa e ricco di privacy, la zona, nel cuore del paese, si contraddistingue per la presenza di tutti principali servizi raggiungibili a piedi.
L'immobile dispone di un giardino su tre lati di circa 300 mq, tramite il cancello elettrico si accede alla proprietà privata che comincia da un magnifico portico esterno, ottimo per pranzi estivi con gli amici o come zona di relax all'aria aperta.
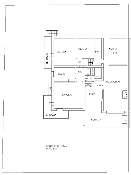
Al piano terra si trova un luminoso soggiorno di 33 mq con caminetto e la cucina separata di 14,5 mq, salendo tramite le scale, il piano rialzato accoglie la camera di 8,6 mq, la camera doppia di 12,8 mq con balconcino privato, un bagno finestrato con vasca e la camera matrimoniale padronale di 17,6 mq anch'essa con balconcino privato. A concludere la zona notte, al primo e ultimo piano è presente un vano di 60 mq attualmente al grezzo da poter ricavare un appartamento totalmente indipendente, con predisposizione per un bagno e angolo cottura.
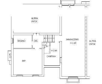
Passando al piano semi interrato la proprietà comprende un garage di 29 mq con basculante motorizzato, una taverna di 17 mq e il secondo bagno finestrato con doccia, per poi passare al piano interrato comprensivo di ampio magazzino, centrale termica e cantina.
La costruzione è in buono stato di manuntenzione e prevede: infissi in vetrocamera con alta ribalta, caldaia a condensazione e pannelli solari termici del 2008, condizionatori del 2018, pannelli fotovoltaici nel 2012 senza accumulo con 3 KWH, impianto di irrigazione e impianto d'allarme sia volumetrico che perimetrale.
L'immobile è stato pensato per spazi ampi e famiglie numerose che vogliono godersi della privacy ma non rinunciare ai servizi principali del paese.
L'indirizzo indicato è puramente indicativo al singolo Comune dell'annuncio trattato.
La nostra agenzia offre un servizio gratuito di consulenza per mutui fino al 100%
Ti serve un mutuo? Chiedi una consulenza gratuita ai nostri specialisti del credito
""" RIFERIMENTO FGS11 """
Visita il nostro sito https://idhea.it/ per ulteriori proposte ed altri servizi come la VALUTAZIONE GRATUITA DEL TUO IMMOBILE.
L'agenzia Idhea di Villorba propone per i suoi clienti splendida porzione di bifamiliare in vendita a Visnadello, sita in un quartiere residenziale edificato quasi esclusivamente di villette e porzioni a bassa densità abitativa e ricco di privacy, la zona, nel cuore del paese, si contraddistingue per la presenza di tutti principali servizi raggiungibili a piedi.
L'immobile dispone di un giardino su tre lati di circa 300 mq, tramite il cancello elettrico si accede alla proprietà privata che comincia da un magnifico portico esterno, ottimo per pranzi estivi con gli amici o come zona di relax all'aria aperta.
Al piano terra si trova un luminoso soggiorno di 33 mq con caminetto e la cucina separata di 14,5 mq, salendo tramite le scale, il piano rialzato accoglie la camera di 8,6 mq, la camera doppia di 12,8 mq con balconcino privato, un bagno finestrato con vasca e la camera matrimoniale padronale di 17,6 mq anch'essa con balconcino privato. A concludere la zona notte, al primo e ultimo piano è presente un vano di 60 mq attualmente al grezzo da poter ricavare un appartamento totalmente indipendente, con predisposizione per un bagno e angolo cottura.
Passando al piano semi interrato la proprietà comprende un garage di 29 mq con basculante motorizzato, una taverna di 17 mq e il secondo bagno finestrato con doccia, per poi passare al piano interrato comprensivo di ampio magazzino, centrale termica e cantina.
La costruzione è in buono stato di manuntenzione e prevede: infissi in vetrocamera con alta ribalta, caldaia a condensazione e pannelli solari termici del 2008, condizionatori del 2018, pannelli fotovoltaici nel 2012 senza accumulo con 3 KWH, impianto di irrigazione e impianto d'allarme sia volumetrico che perimetrale.
L'immobile è stato pensato per spazi ampi e famiglie numerose che vogliono godersi della privacy ma non rinunciare ai servizi principali del paese.
L'indirizzo indicato è puramente indicativo al singolo Comune dell'annuncio trattato.
La nostra agenzia offre un servizio gratuito di consulenza per mutui fino al 100%
Ti serve un mutuo? Chiedi una consulenza gratuita ai nostri specialisti del credito
Mappa
Contattaci
INFORMAZIONI EXTRA
AMBIENTI
| Soggiorno | |
| Cucina | |
| Mansarda | |
| Taverna | |
| Poggioli/balconi | 2 |
| Giardino | |
| Cantina | |
| Posto auto | 1 |
| Garage | 1 |
| Lavanderia |
LIVELLI & COMFORT
| Livelli | Piano interrato , Piano rialzato , Piano semi interrato , Piano terra , Ultimo piano |
| Aria condizionata | |
| Caldaia a condensazione | |
| Pannelli fotovoltaici | |
| Pannelli solari | |
| Riscaldamento autonomo | |
| Allarme | |
| Animali ammessi | |
| Ingresso indipendente | |
| Numero accessi carrai | 1 |
| Numero portoni | 1 |



