TREVISO - SAN PELAJO
L'indirizzo segnalato è puramenti indicativo al singolo Comune dell'annuncio trattato.
"""RIFERIMENTO FRT1"""
Proponiamo in vendita in esclusiva questo appartamento trilocale, con travatura a vista, su palazzina del 2010 con 7 unità abitative.
L'immobile si trova al piano terra, con un giardino di ca. 130 mq ed un ulteriore scoperto piastrellato di 20 mq con la presenza di pompeiana.
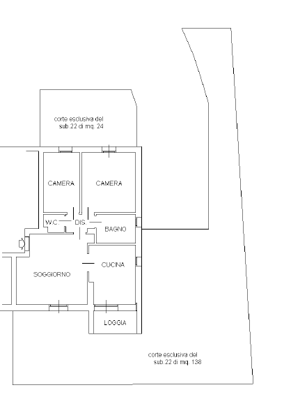
La disposizione degli spazi interni è la seguente:
ingresso su soggiorno di 21 mq, cucina separata di 13 mq (per un totale di 34 mq di zona giorno), camera matrimoniale di 14,5 mq, camera singola di 9,5 mq, bagno principale finestrato con doccia e bagno di servizio.
Completano la proprietà un garage di proprietà ed un posto auto ad uso esclusivo.
INFORMAZIONI SULL'IMMOBILE:
-cappotto;
-riscaldamento a pavimento;
-travatura a vista;
-pompeiana esterna ideale per pranzi e cene all'aperto.
-pavimentazione in legno in zona soggiorno e camere, gres porcellanato nel bagno e piastrellato in cucina.
-zanzariere;
-due split climatizzatore, uno in zona giorno e uno in zona notte;
-ante a ribalta su tutti gli infissi;
-irrigazione.
-infissi vetrocamera con ante a ribalta;
L'indirizzo segnalato è puramenti indicativo al singolo Comune dell'annuncio trattato.
"""RIFERIMENTO FRT1"""
Proponiamo in vendita in esclusiva questo appartamento trilocale, con travatura a vista, su palazzina del 2010 con 7 unità abitative.
L'immobile si trova al piano terra, con un giardino di ca. 130 mq ed un ulteriore scoperto piastrellato di 20 mq con la presenza di pompeiana.
La disposizione degli spazi interni è la seguente:
ingresso su soggiorno di 21 mq, cucina separata di 13 mq (per un totale di 34 mq di zona giorno), camera matrimoniale di 14,5 mq, camera singola di 9,5 mq, bagno principale finestrato con doccia e bagno di servizio.
Completano la proprietà un garage di proprietà ed un posto auto ad uso esclusivo.
INFORMAZIONI SULL'IMMOBILE:
-cappotto;
-riscaldamento a pavimento;
-travatura a vista;
-pompeiana esterna ideale per pranzi e cene all'aperto.
-pavimentazione in legno in zona soggiorno e camere, gres porcellanato nel bagno e piastrellato in cucina.
-zanzariere;
-due split climatizzatore, uno in zona giorno e uno in zona notte;
-ante a ribalta su tutti gli infissi;
-irrigazione.
-infissi vetrocamera con ante a ribalta;
Mappa
Contattaci
INFORMAZIONI EXTRA
AMBIENTI
| Soggiorno | |
| Cucina | |
| Terrazzi | 1 |
| Giardino | |
| Garage | 1 |
| Porticato |
LIVELLI & COMFORT
| Livelli | Piano terra |
| Aria condizionata | |
| Riscaldamento autonomo | |
| Riscaldamento a pavimento | |
| Accesso disabili | |
| Animali ammessi | |
| Numero accessi carrai | 1 |
| Porta blindata | |
| Zanzariere |

